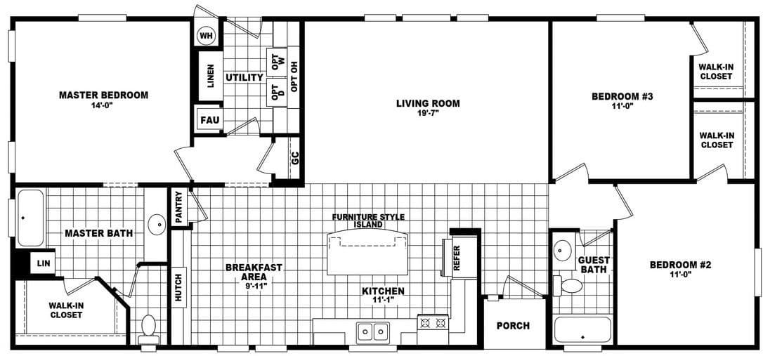
Homes | Mountain Ridge 28603B